1 AKH-0.66S系統監控用電流互感器
1.1 產品特點
AKH-0.66S型雙繞組電流互感器作為低壓配電系統監控電流的采集元件具有兩個繞組,其一(1S1、1S2)用于電流表指示,額定二次電流為AC5A或AC1A,其二(2S1、2S2)用于遠傳遙測,可與我公司生產的ARTU-M32配套使用,額定二次電流為AC0-20mA;亦可用于電動機保護回路中使用,但由于電流保護回路過載電流為5-8倍,所以確保雙繞組電流互感器的線性至8倍,且電流在8倍時,能保證雙繞組電流互感器的誤差在0.2-0.5%。
產品外殼結構采用翻蓋結構,外殼采用阻燃、耐溫140℃的PC材料注塑成形,鐵芯采用冷軋硅鋼帶卷制而成,二次導線采用高強度電磁漆包線,產品結構新穎,造型美觀,安裝方便。產品具有體積小、質量輕、準確度高、容量大等特點。
1.2 型號說明

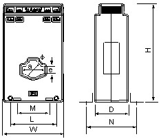
1.3 規格尺寸


1.4 規格參數對照表
注:準確級及其相應額定負荷欄中有“*”標注的為特殊規格,訂貨時請說明。
2 AKH-0.66SM自控儀表用電流傳感器(雙繞組電流傳感器)
2.1 產品特點
AKH-0.66SM型雙繞組電流傳感器可有兩路輸出,其一(1S1,1S2)輸出AC0-5A或0-1A,與測量、計量裝置配套使用;其二(2S1+,2S2-)輸出DC4-20mA,與自控儀表(如PLC)配套使用,其中輔助電源DC24V由PLC供電。
2.2 型號說明

2.3 規格尺寸


2.4 規格參數對照表
